Wood Working
American Style Barn
Barn - American Style 34x60 (blueprint only)
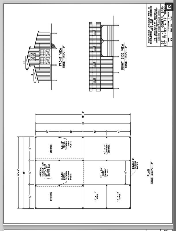
36x48 General Barn
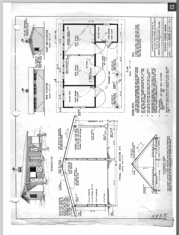
riding-horse-barn
General Barn 18x30
livestock market-barn
cattle shed and auction barn
2 story Braced Rafter Barn Framing
horse-barn-9-stall-and-arena
Ventilation system for barns