You are seeing the paginated version of the page.
It was specially created to help search engines like Google to build the proper search index.

Click to load the full version of the page
Table - Sonoma Picnic Table
Table - Cherry End Table
Table - Bedside Table with Breadboard Ends
Table - Reading Table (Flat Multi-purpose Table)
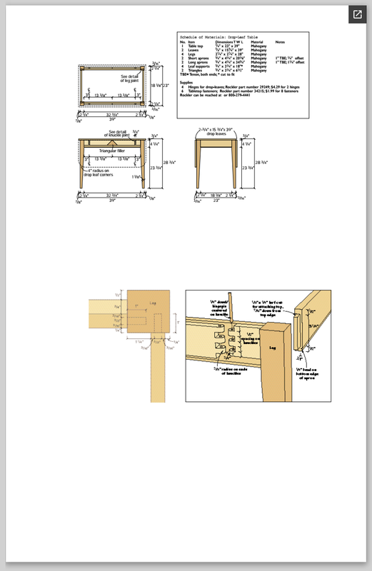
Table - drop-leaf table
Table - Picnic Table without benches
Table - bird house table (glass Top)
Outdoor Table and Bench
Table - Games Table
Table - Shareton-Style Table